Постановление Правительства Нижегородской области от 03.02.2023 N 89 "О комплексном развитии территории жилой застройки в границах ул. Правды, ул. Чонгарская, ул. Менделеева г. Нижнего Новгорода"
ПРАВИТЕЛЬСТВО НИЖЕГОРОДСКОЙ ОБЛАСТИ
ПОСТАНОВЛЕНИЕ
от 3 февраля 2023 г. N 89
О комплексном развитии территории жилой застройки
в границах ул. Правды, ул. Чонгарская, ул. Менделеева
г. Нижнего Новгорода
В соответствии со статьями 64-67 Градостроительного кодекса Российской Федерации, подпунктом "е" пункта 3 статьи 2-1 Закона Нижегородской области от 23 декабря 2014 г. N 197-З "О перераспределении отдельных полномочий между органами местного самоуправления муниципальных образований Нижегородской области и органами государственной власти Нижегородской области", постановлением Правительства Нижегородской области от 13 июля 2021 г. N 601 "Об особенностях комплексного развития территорий в Нижегородской области", на основании решения регионального штаба по вопросам реализации градостроительной политики на территории Нижегородской области от 5 сентября 2022 г., в целях обеспечения сбалансированного и комплексного развития территории городского округа город Нижний Новгород Правительство Нижегородской области постановляет:
1. Установить, что комплексному развитию подлежит территория жилой застройки площадью 1,84 гектара в границах ул. Правды, ул. Чонгарская, ул. Менделеева г. Нижнего Новгорода согласно приложению 1 к настоящему постановлению (далее - территория).
2. Утвердить перечень объектов капитального строительства, расположенных в границах территории, подлежащей комплексному развитию, в том числе перечень объектов капитального строительства, подлежащих сносу или реконструкции, включая многоквартирные дома, согласно приложению 2 к настоящему постановлению.
3. Определить основные виды разрешенного использования земельных участков и объектов капитального строительства, которые могут быть выбраны при реализации решения о комплексном развитии территории, и предельные параметры разрешенного строительства, реконструкции объектов капитального строительства в границах ул. Правды, ул. Чонгарская, ул. Менделеева г. Нижнего Новгорода согласно приложению 3 к настоящему постановлению.
4. Определить перечень объектов капитального строительства и земельных участков, расположенных в границах комплексного развития территории жилой застройки площадью 1,84 гектара в границах ул. Правды, ул.Чонгарская, ул. Менделеева г. Нижнего Новгорода, подлежащих изъятию, согласно приложению 4 к настоящему постановлению.
5. Установить, что:
5.1. Подготовка документации по планировке территории осуществляется победителем торгов в целях заключения договора о комплексном развитии территории жилой застройки, проведенных в соответствии со статьей 69 Градостроительного кодекса Российской Федерации, либо с иным участником торгов, определенным в соответствии с указанной статьей, в соответствии с согласованным мастер-планом после заключения договора о комплексном развитии территории.
5.2. Соотношение общей площади жилых и нежилых помещений в многоквартирных домах должно составлять соответственно 97% и 3% от общей площади помещений. Нежилые помещения размещаются на первых этажах домов, подлежащих строительству.
5.3. Предельный срок реализации решения о комплексном развитии территории составляет 10 лет со дня вступления в силу настоящего постановления.
6. Настоящее постановление вступает в силу по истечении десяти дней после дня его официального опубликования.
И.о.Губернатора А.Н.Гнеушев
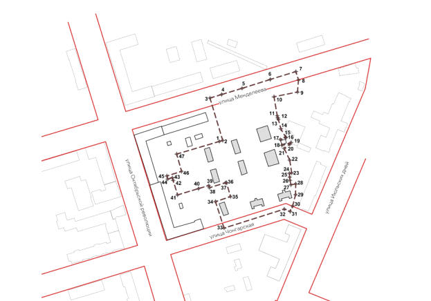
ПРИЛОЖЕНИЕ 1
к постановлению Правительства
Нижегородской области
от 3 февраля 2023 г. N 89
Местоположение и границы подлежащей комплексному
развитию территории жилой застройки площадью
1,84 гектара в границах ул. Правды, ул. Чонгарская,
ул. Менделеева г. Нижнего Новгорода


N точки | Координаты точки | |
| X | Y |
1 | 528014.20 | 2212324.79 |
2 | 528015.49 | 2212329.18 |
3 | 528070.59 | 2212312.67 |
4 | 528075.15 | 2212327.68 |
5 | 528083.24 | 2212354.34 |
6 | 528094.74 | 2212390.80 |
7 | 528105.01 | 2212424.15 |
8 | 528094.26 | 2212427.35 |
9 | 528078.43 | 2212426.07 |
10 | 528072.20 | 2212395.59 |
11 | 528047.44 | 2212399.88 |
12 | 528044.94 | 2212400.44 |
13 | 528042.68 | 2212401.33 |
14 | 528030.68 | 2212404.49 |
15 | 528019.83 | 2212410.58 |
16 | 528019.24 | 2212411.17 |
17 | 528016.76 | 2212403.73 |
18 | 528009.17 | 2212406.00 |
19 | 528012.77 | 2212417.65 |
20 | 528010.51 | 2212416.04 |
21 | 528005.15 | 2212408.83 |
22 | 527989.87 | 2212415.98 |
23 | 527973.20 | 2212418.59 |
24 | 527972.73 | 2212415.62 |
25 | 527967.85 | 2212415.99 |
26 | 527963.81 | 2212416.35 |
27 | 527957.88 | 2212417.60 |
28 | 527959.19 | 2212423.76 |
29 | 527945.08 | 2212423.58 |
30 | 527930.41 | 2212419.76 |
31 | 527923.24 | 2212416.57 |
32 | 527926.34 | 2212408.99 |
33 | 527901.66 | 2212330.93 |
34 | 527936.08 | 2212319.81 |
35 | 527942.54 | 2212339.30 |
36 | 527960.86 | 2212333.99 |
37 | 527960.61 | 2212333.13 |
38 | 527954.13 | 2212311.94 |
39 | 527956.90 | 2212311.09 |
40 | 527952.20 | 2212295.20 |
41 | 527944.78 | 2212270.74 |
42 | 527963.77 | 2212264.95 |
43 | 527967.14 | 2212263.94 |
44 | 527965.25 | 2212257.96 |
45 | 527969.40 | 2212256.79 |
46 | 527975.34 | 2212275.89 |
47 | 527997.82 | 2212269.54 |
ПРИЛОЖЕНИЕ 2
к постановлению Правительства
Нижегородской области
от 3 февраля 2023 г. N 89
ПЕРЕЧЕНЬ
объектов капитального строительства, расположенных в
границах территории жилой застройки площадью 1,84
гектара в границах ул. Правды, ул. Чонгарская,
ул. Менделеева г. Нижнего Новгорода, подлежащей
комплексному развитию, в том числе перечень объектов
капитального строительства, подлежащих сносу или
реконструкции, включая многоквартирные дома
N п/п | Кадастровый номер объекта капитального строительства | Адрес объекта капитального строительства | Площадь объекта капитального строительства, кв. м | Площадь жилых помещений МКД, подлежащих расселению без МОП, кв. м | Кадастровый номер земельного участка, на котором расположен объект капитального строительства | Адрес земельного участка, на котором расположен объект капитального строительства | Площадь земельного участка, на котором расположен объект капитального строительства, кв. м | Статус объекта | Сведения о сносе/ реконструкции объектов капитального строительства |
1 | 52:18:0050003:27 | ул. Правды, 5а | 373,3 | 331,20 | 52:18:0050003:15 | Нижегородская обл., г. Нижний Новгород, Ленинский район, ул. Правды, дом 5а | 962,0 | ветхий | снос |
2 | 52:18:0050003:36 | ул. Правды, 5 | 238,0 | 0 | 52:18:0050003:14 | Нижегородская обл., г. Нижний Новгород, Ленинский район, ул. Правды, дом 5 | 581,0 | аварийный | снос |
3 | 52:18:0050003:29 | ул. Правды, 6 | 246,2 | 0 | 52:18:0050003:20 | Нижегородская обл., г.Нижний Новгород, Ленинский район, ул.Правды, дом 6 | 215,0 | аварийный | снос |
4 | 52:18:0050003:30 | ул. Правды, 7 | 234,7 | 199,70 | 52:18:0050003:23 | Нижегородская обл., г. Нижний Новгород, Ленинский район, ул. Правды, дом 7 | 567,0 | аварийный | снос |
5 | 52:18:0050003:42 | ул. Правды, 7а | 395,7 | 347,90 | 52:18:0050003:13 | Нижегородская обл., г. Нижний Новгород, Ленинский район, ул. Правды, дом 7а | 1 005 | ветхий | снос |
6 | 52:18:0050003:31 | ул. Правды, 8 | 227,7 | 159,9 | 52:18:0050003:22 | Нижегородская обл., г. Нижний Новгород, Ленинский район, ул. Правды, дом 8 | 237,0 | аварийный | снос |
7 | 52:18:0050003:28 | ул. Правды, 10 | 221,8 | 0 | 52:18:0050003:21 | Нижегородская обл., г.Нижний Новгород, Ленинский район, ул.Правды, дом 10 | 537,0 | аварийный | снос |
8 | 52:18:0050003:38 | ул. Чонгарская, 2 | 237,6 | 193,90 | 52:18:0050003:25 | Нижегородская обл., г. Нижний Новгород, Ленинский район, ул. Чонгарская, дом 2 | 581,0 | ветхий | снос |
9 | 52:18:0050003:39 | ул. Чонгарская, 4 | 240,0 | 186,70 | 52:18:0050003:16 | Нижегородская обл., г. Нижний Новгород, Ленинский район, ул. Чонгарская, дом 4 | 588,0 | ветхий | снос |
|
| Итого: | 2415 | 1419,30 |
|
| 5273 |
|
|
ПРИЛОЖЕНИЕ 3
к постановлению Правительства
Нижегородской области
от 3 февраля 2023 г. N 89
Основные виды разрешенного использования земельных участков и
объектов капитального строительства, которые могут быть выбраны
при реализации решения о комплексном развитии территории жилой
застройки площадью 1,84 гектара в границах ул. Правды,
ул. Чонгарская, ул. Менделеева г.Нижнего Новгорода
Виды разрешенного использования земельных участков (наименование, код) | Виды разрешенного использования земельных участков (описание) | Виды разрешенного использования объектов капитального строительства (наименование объектов капитального строительства) |
Многоэтажная жилая застройка (высотная застройка) 2.6 | Размещение жилых домов, предназначенных для разделения на квартиры, каждая из которых пригодна для постоянного проживания (жилые дома высотой девять и выше этажей, включая подземные, разделенных на двадцать и более квартир); благоустройство и озеленение придомовых территорий; обустройство спортивных и детских площадок, хозяйственных площадок; размещение подземных гаражей и наземных автостоянок, размещение объектов обслуживания жилой застройки во встроенных, пристроенных и встроенно-пристроенных помещениях многоквартирного дома, в отдельных помещениях дома, если площадь таких помещений в многоквартирном доме не составляет более 15% от общей площади дома | многоквартирный дом, многоквартирный дом со встроенными, пристроенными и встроенно-пристроенными помещениями общественного назначения, встроенно-пристроенными и подземными стоянками автомобилей |
Объекты гаражного назначения 2.7.1 | Размещение отдельно стоящих и пристроенных гаражей, в том числе подземных, предназначенных для хранения личного автотранспорта граждан, с возможностью размещения автомобильных моек | стоянка-паркинг (подземные, обвалованные, полуподземные), плоскостные открытые стоянки автомобилей |
Коммунальное обслуживание 3.1 | Размещение объектов капитального строительства в целях обеспечения физических и юридических лиц коммунальными услугами | объекты и сети водоснабжения, водоотведения, теплоснабжения, электроснабжения, газоснабжения, связи, наружного освещения |
Земельные участки (территории) общего пользования 12.0 | Размещение объектов улично-дорожной сети, автомобильных дорог и пешеходных тротуаров в границах населенных пунктов, пешеходных переходов, набережных, береговых полос водных объектов общего пользования, скверов, бульваров, площадей, проездов, малых архитектурных форм благоустройства | автомобильные дороги, разворотные площадки |
Предельные параметры разрешенного строительства,
реконструкции объектов капитального строительства в
границах ул. Правды, ул. Чонгарская, ул. Менделеева
Максимальная этажность объектов капитального строительства - 21;
Максимальный процент застройки территории ( наземная часть) - 24 %;
Минимальный процент озеленения территории - 25 %;
Максимальная плотность застройки - 1,84
Обеспечение объектами обслуживания осуществляется в границах комплексного развития территории за счет их размещения в нежилых помещениях, располагаемых на первых этажах домов, подлежащих строительству. А также обеспечение объектами обслуживания, в том числе социального назначения предусматривается за границами комплексного развития территории.
ПРИЛОЖЕНИЕ 4
к постановлению Правительства
Нижегородской области
от 3 февраля 2023 г. N 89
Перечень объектов капитального строительства и
земельных участков, расположенных в границах
комплексного развития территории жилой застройки
площадью 1,84 гектара в границах ул. Правды,
ул. Чонгарская, ул. Менделеева г. Нижнего
Новгорода, подлежащих изъятию
N п/п | Кадастровый номер земельного участка | Адрес земельного участка в соответствии с ФИАС | Вид разрешенного использования земельного участка | Площадь земельного участка, кв. м | Вид зарегистрированного права | Сведения о правообладателе, доля в праве, дата и номер регистрации права | Сведения об изъятии |
1 | 52:18:0050003:13 | Нижегородская обл., г. Нижний Новгород, Ленинский район, ул. Правды, дом 7а | под многоквартирный дом | 1005 | общая долевая собственность | собственники помещений в многоквартирном доме | изъятие |
2 | 52:18:0050003:14 | Нижегородская обл., г. Нижний Новгород, Ленинский район, ул. Правды, дом 5 | под многоквартирный дом | 581 | общая долевая собственность | собственники помещений в многоквартирном доме | изъятие |
3 | 52:18:0050003:15 | Нижегородская обл., г. Нижний Новгород, Ленинский район, ул. Правды, дом 5а | под многоквартирный дом | 962 | общая долевая собственность | собственники помещений в многоквартирном доме | изъятие |
4 | 52:18:0050003:16 | Нижегородская обл., г. Нижний Новгород, Ленинский район, ул. Чонгарская, дом 4 | под многоквартирный дом | 588 | общая долевая собственность | собственники помещений в многоквартирном доме | изъятие |
5 | 52:18:0050003:17 | Нижегородская обл., г. Нижний Новгород, Ленинский район, ул. Менделеева, дом 1 | под многоквартирный дом | 585 | общая долевая собственность | собственники помещений в многоквартирном доме | изъятие |
6 | 52:18:0050003:18 | Нижегородская обл., г. Нижний Новгород, Ленинский район, ул. Менделеева, дом 3 | Под многоквартирный дом | 578 | общая долевая собственность | собственники помещений в многоквартирном доме | изъятие |
7 | 52:18:0050003:20 | Нижегородская обл., г. Нижний Новгород, Ленинский район, ул. Правды, дом 6 | под многоквартирный дом | 215 | общая долевая собственность | собственники помещений в многоквартирном доме | изъятие |
8 | 52:18:0050003:21 | Нижегородская обл., г. Нижний Новгород, Ленинский район, ул. Правды, дом 10 | под многоквартирный дом | 537 | общая долевая собственность | собственники помещений в многоквартирном доме | изъятие (постановление администрации г.Н.Новгорода от 20.04.2021 N 1593 об изъятии) |
9 | 52:18:0050003:22 | Нижегородская обл., г. Нижний Новгород, Ленинский район, ул. Правды, дом 8 | под многоквартирный дом | 237 | общая долевая собственность | собственники помещений в многоквартирном доме | изъятие |
10 | 52:18:0050003:23 | Нижегородская обл., г. Нижний Новгород, Ленинский район, ул. Правды, дом 7 | под многоквартирный дом | 567 | общая долевая собственность | собственники помещений в многоквартирном доме | изъятие (постановление администрации г.Н.Новгорода от 03.02.2022 N 406 об изъятии) |
11 | 52:18:0050003:25 | Нижегородская обл., г. Нижний Новгород, Ленинский район, ул. Чонгарская, дом 2 | под многоквартирный дом | 581 | общая долевая собственность | собственники помещений в многоквартирном доме | изъятие |
